Calculette
Partager
75013 - 4 PIECES 80 M² AVEC CAVE ET 2 PARKINGS
Description de l'offre
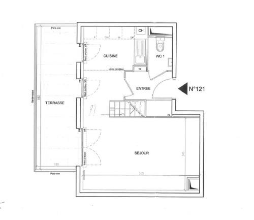
Dans la Tour HELSINKY, une résidence sécurisée bon standing avec gardien (50 rue du Disque). ABCI IMMOBILIER vous propose un appartement 4 pièces 80 m² comprenant : entrée avec placards, séjour/salle à manger, cuisine séparée, salle de bains, salle d'eau, 3 chambres, WC, dégagement, placards. TRAVAUX A PREVOIR ! Appartement calme et lumineux, avec une double orientation, bien distribué, idéalement situé dans un quartier commerçant très recherché. Proche toutes commodités, deux places de parking et une cave complètent ce bien. Transports communs en Métro: ligne 14 Olympiades et ligne 7 Porte de Choisy, TRAM: T3A, T9, Bus 62/64 Bien soumis au règime de la copropriété, quote part annuelle des charges: 5 592 euros
Descriptif du bien
- Code postal : 75013
- Surface habitable (m²) : 80 m²
- Surface loi Carrez (m²) : 79,87 m²
- Nombre de chambre(s) : 3
- Nombre de pièces : 4
- Etage : 18
- Ascenseur : OUI
- Vue : Dégagée sans vis-à-vis
- Nb de salle de bains : 1
- Nb de salle d'eau : 1
- Cuisine : SEPAREE
- Type de cuisine : SEMI-EQUIPEE
- Mode de chauffage : Gaz
- Type de chauffage : Radiateur
- Format de chauffage : Collectif
- Interphone : OUI
- Cave : OUI
- Surface cave (m²) : 3
- Exposition : EST-OUEST
- Année de construction : 1970
- Copropriété : OUI
- Lot n° : 7631/7332/17314/17345
- nombre de lots : 4
- Quote Part annuelle des charges : 5 590 €
- Prix de vente honoraires TTC inclus : 475 000 €
- Prix de vente honoraires TTC exclus : 455 000 €
- Honoraires TTC à la charge acquéreur : 4,4 %
- Charges : 466 €
- Taxe foncière annuelle : 1 715 €
Montant estimé des dépenses annuelles d'énergie pour un usage standard est compris entre 1 660 € et 2 300 € . Prix moyens des énergies indexés sur les années 2021, 2022 et 2023 (abonnements compris).
La ville de Paris (75013)
Ce bien vous intéresse ?
Partager l'offre
ABCI immobilier
Villejuif (94800)
Les informations recueillies sur ce formulaire sont enregistrées dans un fichier informatisé par La Boite Immo agissant comme Sous-traitant du traitement pour la gestion de la clientèle/prospects de l'Agence / du Réseau qui reste Responsable du Traitement de vos Données personnelles.
La base légale du traitement repose sur l'intérêt légitime de l'Agence / du Réseau.
Elles sont conservées jusqu'à demande de suppression et sont destinées à l'Agence / au Réseau.
Conformément à la loi « informatique et libertés », vous disposez des droits d’accès, de rectification, d’effacement, d’opposition, de limitation et de portabilité de vos données. Vous pouvez retirer votre consentement à tout moment en contactant directement l’Agence / Le Réseau.
Consultez le site https://cnil.fr/fr pour plus d’informations sur vos droits.
Si vous estimez, après avoir contacté l'Agence / le Réseau, que vos droits « Informatique et Libertés » ne sont pas respectés, vous pouvez adresser une réclamation à la CNIL.
Nous vous informons de l’existence de la liste d'opposition au démarchage téléphonique « Bloctel », sur laquelle vous pouvez vous inscrire ici : https://www.bloctel.gouv.fr
Dans le cadre de la protection des Données personnelles, nous vous invitons à ne pas inscrire de Données sensibles dans le champ de saisie libre.
Ce site est protégé par reCAPTCHA, les Politiques de Confidentialité et les Conditions d'Utilisation de Google s'appliquent.
